Tên dự án: Hado Charm Villas
Chủ đầu tư: Tập đoàn Hà Đô
Quy mô dự án: 30 ha
Mật độ xây dựng: 18,1 %
Vị trí dự án: Km 11 Đại Lộ Thăng Long, An Thượng, Hoài Đức, TP.Hà Nội
Sản phẩm: Biệt thự đơn lập, biệt thự song lập, nhà vườn liền kề và Nhà phố Shophouse.
Tiện ích dự án: Công viên, vườn hoa; sân cầu lông, tennis, bóng rổ; Gym, spa, bể bơi ngoài trời, Bể bơi bốn mùa; Trung tâm chăm sóc sức khỏe, Sân chơi trẻ em; An ninh 24/24
Hoàn thiện: Xây thô bên trong và hoàn thiện mặt ngoài
Đơn vị quản lý: Savills
Bàn giao: Đợt 1 từ quý II/2023. Đã hoàn thiện toàn bộ khu đô thị.
Hình thức sở hữu: Lâu dài

Vị trí đất vàng phía tây Hà Nội
VỊ TRÍ VÀNG TRUNG TÂM KẾT NỐI
Hà Đô Charm Villas có vị trí đắc địa Nằm trên trục đại lộ Thăng Long rộng 140m. Dự án chỉ cách trung tâm Hội Nghị Quốc Gia 10km. Ngoài ra dự án còn tiếp giáp với đường liên khu 8 rộng 50m nối Hoài Đức với Đan Phượng đang được xây dựng.
– Liền kề các dự án: Vinhomes Thăng Long, Sudico Nam An Khánh, Gleximco, Splendora
– Phía Bắc: Giáp đại lộ Thăng Long
– Phía Đông: Giáp tuyến đường liên khu 8 rộng 50m và khu đô thị Nam An Khánh
– Phía Nam: Giáp khu đất dịch vụ xã An Thượng
– Phía Tây: Giáp khu đất dịch vụ xã An Thượng và khu dân cư.

Trong bán kính 3km Cư dân Hà Đô Charm Villas đã có trường học Vinschool, trường quốc tế mỹ St. Paul, Trường quốc tế Nhật, Bệnh viện quốc tế Vinmec, Trung tâm thương mại Aeon Mall Hà Đông, Vincom Megamall.

Hado Charm Villa nằm trên trục đại lộ huyết mạch và Tiếp giáp với nhiều khu đô thị Lớn đã hoàn thành
Đặc điểm vị trí của dự án:
- Cửa ngõ phía tây của thủ đô Hà Nội
- 20 phút di chuyển để tới các quận trung tâm thành phố
- 15 phút để di chuyển tới trung tâm hội nghị quốc gia
- 35 phút để di chuyển ra sân bay quốc tế Nội Bài
- 20 phút để tới khu công nghệ cao Láng Hoà Lạc
QUY HOẠCH VÀ THIẾT KẾ ĐẲNG CẤP
Được thiết kế quy hoạch bởi Surbana (Singapore) và quản lý vận hành bởi CBRE, Hado Charm Villas bao gồm 528 căn biệt thự, liền kề và shophouse đẳng cấp, vừa mang hơi hướng hiện đại lại vừa gần gũi với thiên nhiên. Với mật độ xây dựng chỉ 18,1%, Hado Charm Villas mang đến không gian sống như một resort 5 sao giữa trung tâm Hà Nội

Trường quốc tế, hệ thống trường học liên cấp quốc tế
Trung tâm chăm sóc sức khỏe
Quảng trường trung tâm, đài phun nước
Nhà sinh hoạt cộng đồng
Sân chơi thể thao: sân tennis, bóng rổ, cầu lông
Sân chơi trẻ em
Phòng Gym, Spa, Yoga…
Bể bơi trong nhà và ngoài trời
Vườn hoa, đường dạo bộ ven hồ
Hệ thống Shophouse dịch vụ đem đến những thương hiệu mua sắm, ăn uống tốt nhất cho khách hàng
Bể cá Koi ngay trong hồ trung tâm và các hồ bé xen kẽ các khu biệt thự
An ninh 3 lớp 24/24, bãi đỗ xe công cộng

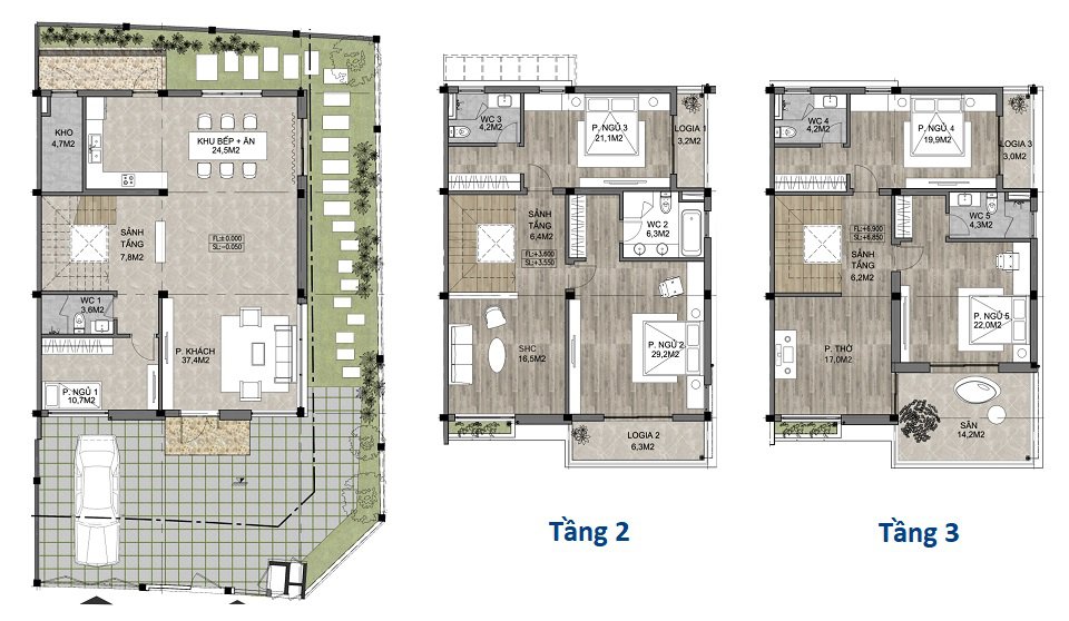
Sản phẩm nhà ở Hà Đô Charm Villas
Phối cảnh biệt thự đơn lập Hà Đô Charm Villas

Biệt thự song lập thiết kế cân xứng, sân vườn
Phối cảnh nhà Liền Kề Hà Đô Charm

Khu Nhà Phố Shophouse Hado Charm với các thương hiệu đẳng cấp phục vụ cuộc sống hiện đại cho cư dân. Với thế đất đẹp, vượng phong thủy, Tập đoàn Hà Đô đã phát triển dự án biệt thự sang trọng, đẳng cấp. Được thiết kế kiến trúc, cảnh quan bởi các công ty danh tiếng như Architype, quản lý bởi CBRE,…Chắc chắn Hado Charm Villas sẽ trở thành khu đô thị xanh đáng sống bậc nhất phía tây thủ đô.

Nhà phố Shophouse
Với tinh thần làm việc khẩn trương và đặt chất lượng lên hàng đầu, đội ngũ thi công của Hà Đô Charm Villa luôn miệt mài tại công trường để giữ vững niềm tin với các nhà đầu tư và khách hàng.

Hoàn thiện mặt ngoài Biệt thự đơn lập Hado Charm Villas

Không gian thơ mộng với những đồi thông, rừng cọ

Đường nội khu với lòng đường 7m, có vỉa hè cho người đi bộ và xe đạp
Giá bán và Tiến độ thanh toán
Với giá bán hợp lý Biệt thự từ 185 triệu/m2 với Liền kề 227 triệu/m2 bao gồm cả tiền đất và xây dựng, không gian sống đẳng cấp, tiện ích ngày càng hoàn thiện, Khu biệt thự Hà Đô Charm Villas là một lựa chọn sáng giá vào thời điểm này.
– Tặng gói cảnh quan sân vườn hoàn thiện trong 6 tháng kể từ ngày bàn giao.
- Liền kề trừ 100tr
- Song lập trừ 200tr
- Đơn lập trừ 300 tr
– Miễn phí 2 năm phí quản lý.
– Người thân trong gia đình mua căn thứ 2 trừ 0.5% trước VAT.
– Hỗ trợ bank 65% trong 24 tháng gồm KHCN và KHDN.
– Thanh toán tiến độ 2 tháng/đợt không chiết khấu
– Thanh toán sớm 95% chiết khấu 10%.
Tiến độ thanh toán linh hoạt:
- Đợt 1: Thanh toán 15% Ký Hợp Đồng Mua Bán
- Đợt 2: Thanh toán 15% sau đợt 1 thời gian 60 ngày
- Đợt 3: Thanh toán 20% sau đợt 1 thời gian 120 ngày
- Đợt 4: Thanh toán 20% sau đợt 1 thời gian 150 ngày
- Đợt 5: Thanh toán 25% khi có thông báo bàn giao nhà không muộn hơn 180 ngày.
- Đợt 6: Thanh toán 5% cấp Sổ đỏ dự kiến trong vòng 360 ngày.










